Ресторан CALIFORNIA
Ресторан CALIFORNIA
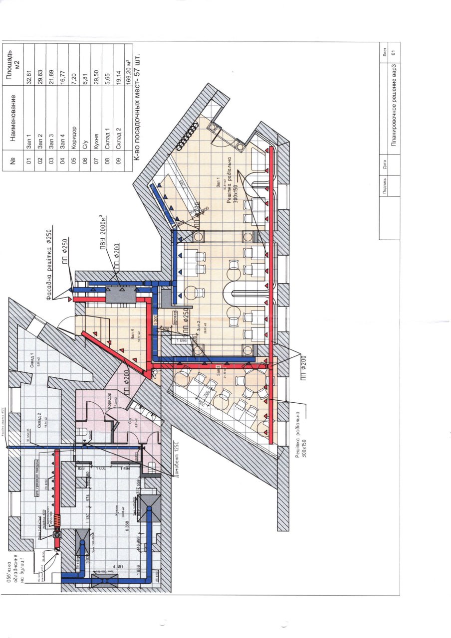
Об'єкт - ресторан "Каліфорнія", розташований в місті Івано-Франківськ.
Ми здійснили комплексну роботу "ПІД КЛЮЧ". Розроблено об'єкт із кресленнями та виконано монтаж таких систем:
Вентиляційні системи по всьому ресторану, забезпечивши ефективне та оптимальне повітряне середовище для комфортного перебування відвідувачів та персоналу.
Встановлення промислових кухонних витяжок та інших кліматичних установок - це дозволяє забезпечити ефективне видалення заднього запаху та випарів з кухонної зони, зберігаючи чистоту та комфорт на кухні.
Монтаж кондиціонерів - для створення оптимального мікроклімату в ресторані, що забезпечує приємну температуру незалежно від зовнішніх умов.
Теплова завіса при вході в ресторан - для підтримки комфортної температури та запобігання витоку тепла з приміщення.
Наша команда фахівців гарантує надійність та якість встановлених систем, забезпечуючи комфорт та успіх вашого ресторану. Приєднуйтесь до наших задоволених клієнтів у ресторані "Каліфорнія" та насолоджуйтесь комфортним та затишним середовищем у вашому закладі. Звертайтеся до нас для професійних послуг з вентиляції, монтажу кухонних витяжок, кондиціонерів та інших кліматичних установок. Ми готові допомогти вам з реалізацією проектів будь-якої складності.
View full details
Ми здійснили комплексну роботу "ПІД КЛЮЧ". Розроблено об'єкт із кресленнями та виконано монтаж таких систем:
Вентиляційні системи по всьому ресторану, забезпечивши ефективне та оптимальне повітряне середовище для комфортного перебування відвідувачів та персоналу.
Встановлення промислових кухонних витяжок та інших кліматичних установок - це дозволяє забезпечити ефективне видалення заднього запаху та випарів з кухонної зони, зберігаючи чистоту та комфорт на кухні.
Монтаж кондиціонерів - для створення оптимального мікроклімату в ресторані, що забезпечує приємну температуру незалежно від зовнішніх умов.
Теплова завіса при вході в ресторан - для підтримки комфортної температури та запобігання витоку тепла з приміщення.
Наша команда фахівців гарантує надійність та якість встановлених систем, забезпечуючи комфорт та успіх вашого ресторану. Приєднуйтесь до наших задоволених клієнтів у ресторані "Каліфорнія" та насолоджуйтесь комфортним та затишним середовищем у вашому закладі. Звертайтеся до нас для професійних послуг з вентиляції, монтажу кухонних витяжок, кондиціонерів та інших кліматичних установок. Ми готові допомогти вам з реалізацією проектів будь-якої складності.

Цікавить вартість Вашого об'єкту?
Заповніть форму щоб наші менеджери перетелефонували Вам та відповіли на всі Ваші запитання!