Ресторан AMBASADA
Ресторан AMBASADA
Об'єкт - ресторан "Амбасада", знаходиться в місті Івано-Франківськ.
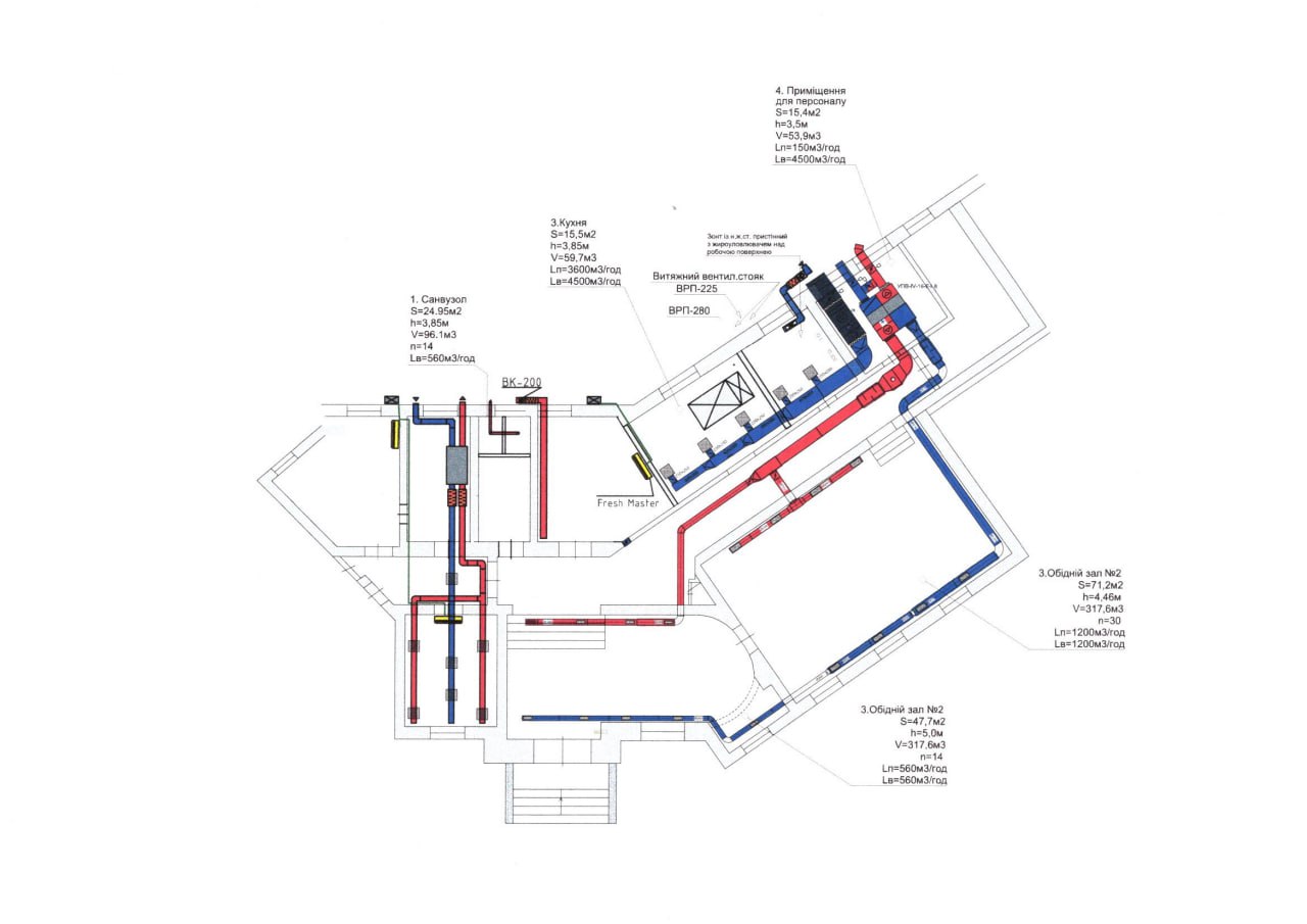
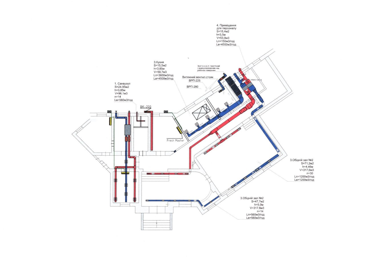
Ми здійснили комплексну роботу "ПІД КЛЮЧ" для даного об'єкта. Розроблено проект із створенням систем вентиляції, проведено всі необхідні технічні роботи та виконано монтаж:
ККБ ( до омпресорно-конденсаторного блоку), вентиляційних систем по всіх приміщеннях, забезпечивши ефективне та оптимальне повітряне середовище для комфортного перебування клієнтів та персоналу.
Встановлення промислових кухонних витяжок - це гарантує ефективне видалення зайвого запаху та випарів з кухонної зони, забезпечуючи чистоту та комфорт на кухнях.
Також ми виконали монтаж кондиціонерів, щоб створити оптимальний мікроклімат в приміщеннях, що дозволяє забезпечити приємний температурний режим незалежно від зовнішніх умов.
Ми пишемося якістю та професіоналізмом виконаної роботи. Наша команда фахівців гарантує надійність та ефективність встановлених систем, щоб забезпечити комфорт вашому ресторану.
Приєднуйтесь до наших задоволених клієнтів та насолоджуйтесь комфортним та затишним середовищем у вашому закладі. Зверніться до нас за професійними послугами з вентиляції, встановлення кухонних витяжок та кондиціонерів. Ми готові допомогти вам з реалізацією проектів будь-якої складності.

Цікавить вартісь Вашого об'єкту?
Заповніть форму щоб наші менеджери перетелефонували Вам та відповіли на всі Ваші запитання!